Nectanebo II is known as the last native ruler of ancient Egypt; Persians and the ancestors of Alexander the Great took over after his reign. Although these circumstances led to Nectanebo II being one of the most underrated pharaohs of Egypt, the temple of Hibis, completed during his reign, tells a fascinating story of the change that took place between the ancient Egyptian glory days and the change to the new regime.
The temple of Hibis was built during the Third Intermediate Period, around the 6th century BC. It is the best preserved and the biggest temple in the Kharga Oasis. Moreover, the site is one of the symbols of the change of ancient Egyptian authority. It connects the attributes of the powerful Egyptian and Persian kings. The temple is a monument attesting to the last four dynasties in the history of Egypt.

Head of Nectanebo II, Museum of Fine Arts of Lyon. (CC BY-SA 2.0 fr)
Honoring the Gods of the Golden Age
The temple of Hibis is located very close to the modern city known as Kharga. This area is dominated by military structures and many remarkable archaeological sites. Originally, the temple of Hibis was planned as a dedication to Amun, Mut, and Khonsu. However, it became mostly associated with Amun, who is also called the Lord of Hibis. Several influential pharaohs of Egypt worshipped Amun.
Thus, the building of another impressive temple in his name may have been an attempt to bring back the glory days of the ancient Egyptian civilization. The golden age of Egypt was connected with cults for gods like Amun, Ra, Mut, etc. Therefore, some chambers in the temple of Hibis were also dedicated to Osiris, Set, and Mut. The last two deities are depicted on large and elaborate reliefs. The ideology depicted on the temple’s walls is related to the classical Theban traditions and inspired by the temples of Karnak and Luxor.
- Elaborately Painted Tomb for Nobleman and Amun Temple Guardian Uncovered in Luxor
- The Great Pyramid of Giza as a monument of creation - Part 1: Earth
- Cannabis: A Journey Through the Ages

An exterior wall of the Hibis temple dedicated to the Theban triad (Amun, Mut & Khonsu) during its recent restoration. (CC BY 2.0)
Although construction began during the 26th dynasty, works weren’t completed until the reign of Nectanebo II. The walls were decorated during the reign of Darius I (552 BC). Researchers claim that both Nectanebo I and Nectanebo II enlarged the existing temple. However, the close of Nectanebo II’s rule also ended the line of Egyptian kings on the throne near the Nile - and opened the gate to more foreign pharaohs in Egypt.

Relief of Darius I of Persia, as Pharaoh of Egypt. (CC BY 2.0)
The Influence of Darius I
The temple of Hibis was also decorated with the texts by the Persian king Darius I, so it is a significant piece of art related to both Egyptian and Persian cultures. After many attempts to conquer Egypt, Persian rule took over during the 6th and 5th centuries BC. In Egypt, Darius ruled through the hands of the priest Udjahorresnet, who was a servant of Cambysses II prior to this role. Udjahorresnet was responsible for creating propaganda for the Persian ruler. He also had to show the king the way to act from the perspective of the Egyptian religion and rituals.
Udjahorresnet’s cartouche was discovered in the temple of Hibis. It was also found on an alabaster storage jar unearthed in Susa and in the ruins of the ancient fortress of Quar el Ghuieta. According to David Klotz:
“Darius I generally supported the local religious cults of his conquered territory. In Egypt, this is most obvious at Hibis Temple, where he significantly expanded the construction initiated earlier by Psammetichus II, and began temple decoration and inscription of texts (518 bce). A priest from Sais, Udjahorresne, describes the visit of Darius to the temple of Neith. After this trip, Darius expelled the occupying foreigners (xAsty.w), ordered that it be re-purified and that its festivals be reinstated as before, and even made offerings to Neith herself. In addition, Darius took care to bury the Apis bull at Memphis who had died immediately prior to his arrival.”
Osiris is presented on the walls in traditional ritual scenes, moreover, King Darius is presented on each wall performing a ritual related to the Egyptian beliefs. Presenting the rituals of Persians wouldn't be understood near the Nile. In fact, nobody was really interested in the exact religious practices of Darius, all that really mattered was the presentation in the temple that was seen by the gods.

Detail of the cella of the Hibis Temple. (CC BY 2.0)
The Walls Remembering Egypt’s Glories
One of the most fascinating decorations is related to the god Set, who was presented on the barque of Ra spearing Apep. During the Late Period, including the times when the Persians ruled Egypt, Set was depicted with a falcon head.
The hymns to Ra seem to be the most important texts in the temple. However, the walls of the Hibis temple became one of the places where a Persian king showed his power as well. Nowadays, it is one of the greatest examples of Persian art in ancient Egyptian temples.
- The Tomb of Pharaoh Seti I: A Missing Mummy, An Unexpected Tunnel and a Mummified Bull
- Shrine dedicated to King Nectanebo I unearthed in Egypt
- Archaeologists Discover a Resting Place for an Ancient Egyptian Sacred Boat

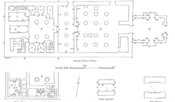
Plan of the Temple of Hibis. (CC BY 2.0)
The temple of Hibis is decorated with texts that depict the powerful rulers of Egypt and help one to understand the complicated religion of the people who lived in this area thousands of years ago. The beauty of this peaceful place also allows you to sense the unique atmosphere of ancient times.
Top image: The temple of Hibis in Kharga oasis, Egypt. (CC BY-SA 3.0)
References:
Adoration of the Ram: Five Hymns to Amun-Re from Hibis Temple by David Klotz, available at:
https://www.academia.edu/240044/Adoration_of_the_Ram_Five_Hymns_to_Amun-Re_from_Hibis_Temple_2006_
Aidon Dodson, Monarchs of the Nile, 1995.
Aidan Dodson, Dyan Hilton, The complete royal families of Ancient Egypt, 2004.
Richard H. Wilkinson, The complete temples of ancient Egypt, 2000.

